Planning Permission Granted on Appeal for Affordable-Led Housing Scheme Near Wadebridge

We’re pleased to share that planning permission has been successfully granted on appeal for an affordable-led housing scheme near Wadebridge.

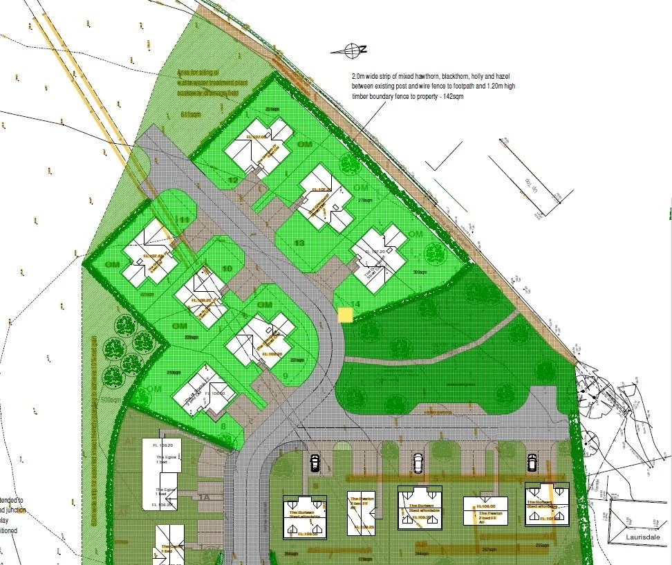
The approved development will deliver 15 new homes, with over 50% provided as affordable housing, helping to address the significant local need for quality, accessible homes. The scheme also includes public open space and financial contributions toward local education and healthcare facilities, ensuring the development brings wider community benefit.

In reaching their decision, the Planning Inspector concluded that the proposal represents sustainable development, is well related to the existing settlement, and that the clear benefits—including much-needed affordable housing—outweigh any limited landscape impact.

This is a fantastic result for all involved and a welcome contribution to meeting housing needs in North Cornwall.

Previous
Previous

9 New Homes in a Cornish Village

Next
Next

Key Worker Homes near Truro