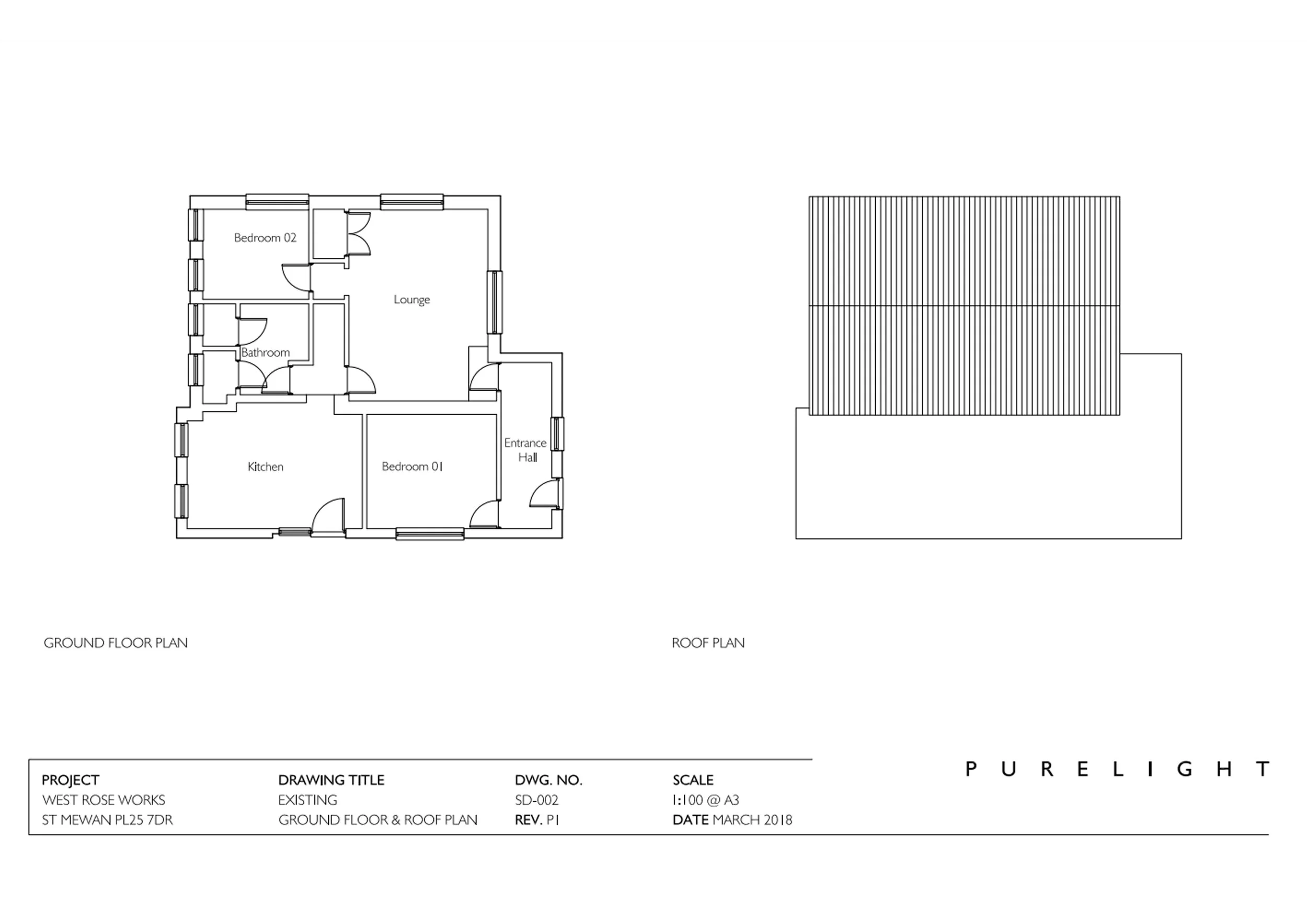
West Rose Works, St Mewan
Approval for a proposed change of use of a building from office use (Class B1(a)) to a dwellinghouse (C3).
West Rose Works St Mewan St Austell Cornwall PL26 7DR
Approval for a proposed change of use of a building from office use (Class B1(a)) to a dwellinghouse (C3).
West Rose Works St Mewan St Austell Cornwall PL26 7DR